






Gazagnon


Un mélange de couleurs vibrantes, matériaux élégants et lignes contemporaines créant un espace de vie à la fois unique, chaleureux et plein d'énergie.
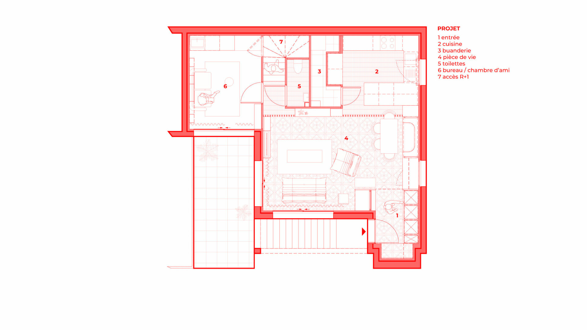
Dès l’entrée, le projet plonge immédiatement dans son univers en jouant avec un monochrome violet. Une teinte profonde et intense qui crée une ambiance sombre et guide progressivement vers la lumière de la cuisine et du séjour.
Les niches et étagères sont mises en valeur par des jeux de textures brillantes dans la même teinte afin d’apporter du contraste et de la profondeur. L’entrée est pensée pour être fonctionnelle grâce à de grands dressings offrant un maximum de rangement et une assise intégrée. Les poignées, discrètes et filantes, se prolongent harmonieusement jusqu’à la cuisine, créant un fil conducteur visuel.
En avançant dans l’entrée, une cloison en verre flûte délimite le petit bureau côté séjour tout en laissant passer la lumière, évitant ainsi de cloisonner complètement l’espace. C’est la couleur qui permet d’identifier l’entrée comme une pièce à part entière sans la fermer, préservant ainsi la sensation d’ouverture et de volume de cet espace pourtant petit.
La cuisine, récemment rénovée et encore en très bon état, est conservée. Un travail de covering est réalisé sur les meubles existants afin de les moderniser et de les harmoniser avec l’esthétique générale du projet.
Le carrelage au sol est remplacé et joue avec une frise rayée pour délimiter visuellement les différents espaces.
Un espace repas prend forme près de l’îlot de cuisine, aménagé avec une banquette sur mesure en bois, accueillante et conviviale, autour d’une table Laurent Badier au design épuré et dynamique.
Le séjour se distingue par des lignes droites qui se répondent, créant un jeu graphique subtil. Une cheminée encastrée dans un meuble en bois aux accents mid-century apporte chaleur et élégance. Dans la continuité de l’entrée, le violet se prolonge sur les murs et les jeux de brillance se retrouvent sur les matériaux. L’espace est optimisé pour offrir un maximum de rangement et répondre au besoin de la cliente pour ses livres, objets d’art et éléments décoratifs.
L’ensemble des éléments techniques, tels que les radiateurs et blocs de climatisation, sont dissimulés grâce à des coffrages en bois sur mesure ajourés. Ces habillages s’intègrent parfaitement à l’aménagement, les rendant presque invisibles.
Des rideaux en dégradé créent une transition douce entre le plafond et le mur violet. Leur légèreté permet de filtrer la lumière naturelle tout en préservant l’intimité en atténuant les vis-à-vis du voisinage.
Le projet se poursuit dans l’espace bureau, pensé pour allier les besoins de création et d’ateliers manuels de notre cliente, tout en offrant la possibilité de se transformer en chambre d’ami pour recevoir des invités. Cet espace combine un canapé-lit, des solutions de rangement et un grand bureau faisant office de plan de travail, dans une ambiance lumineuse et épurée.
Le dégagement menant à l’étage adopte à nouveau un style monochrome, cette fois dans des teintes plus douces avec un lilas vintage. Un néon rose fuschia vient contraster et diffuser une lumière qui attire le regard et fait écho aux touches de rose subtilement intégrées dans les joints du carrelage du séjour. Les contremarches de l’escalier reprennent quant à elles le motif rayé du carrelage au sol.
Au rez-de-chaussée comme à l’étage, les toilettes sont conçus de manière identique avec une identité forte déclinée dans différentes teintes. Un papier peint graphique habille l’ensemble des murs et du plafond, tandis qu’un soubassement coloré délimite l’espace d’assise. Une frise moulurée souligne la transition entre le papier peint et la peinture, ajoutant du charme et de l’originalité à cette pièce.
La chambre parentale fait écho au reste du projet en reprenant les mêmes teintes et jeux de textures. Pour apporter de la profondeur à cet espace, des miroirs en bandeaux sont disposés sur tout le mur face aux fenêtres, créant un effet d’infini et baignant la pièce de lumière. Les poutres apparentes sont conservées, ajoutant du charme et faisant référence au bois, matériau central du projet.
Dans le prolongement de la chambre, une arche dessine le passage vers la salle de bain. Celle-ci, revêtue d’un jaune vitaminé, est à la fois minimaliste et fonctionnelle. Un meuble avec un grand miroir en arche également fait face au passage, prolongeant la perspective. Dans cette salle de bain, inspirante et pleine de vitalité, chaque espace est optimisé, tel que la douche, conçue pour exploiter chaque centimètre de cet espace sous combles.
Chaque détail du projet est pensé pour se répondre. Les lignes droites sont présentent dans l’ensemble du projet et se manifestent sous toutes leurs formes en renforçant ainsi une esthétique structurée et graphique. Elles se retrouvent dans les rayures du carrelage, les motifs du papier peint, l’utilisation du verre flûte ou encore les détails de mobilier.
La lumière naturelle est exploitée et offre une atmosphère générale apaisante. Les matériaux choisis, tels que le bois le verre ou le métal, ont été sélectionnés non seulement pour leur esthétique élégante, mais aussi pour leur pérennité.
Les choix chromatiques sont audacieux et apportent du contraste à l’ensemble, tout en affirmant l’identité de l’espace. Les couleurs ne se limitent pas à habiller les murs, elles imprègnent chaque pièce d’une atmosphère unique, incitant à la contemplation tout en répondant aux besoins d’un environnement confortable et fonctionnel.

























































